產品分類
Guang hui stoves center均化布料車(拋料機)
YZXLC型卸料車
四連桿自動調偏裝置
全自動液壓拉緊裝置
PYTQ型全自動液壓皮帶調正...
SZYL型膠帶自控液壓拉緊裝...
YYTP型全自動液壓調整裝置
電動電液推桿
電動推桿
電液動回轉器(電液頭)
電液動單(雙)側犁式卸料器
SLD(D、S)型緩沖鎖氣漏...
電液動三、四通分料器
DSZ型電液動平板閘門
DSZ型電液動扇形閘門
DEZ型電液動腭式閘門
ZWJ型往復式給料機
裝車閘門(電動簸箕式)
搖臺
阻車器
推車機
滾輪(罐耳)導向裝置
YCZ-56型電液動料流插板...
SZYL型膠帶自控液壓拉緊裝...
YYTP型全自動液壓調整裝置
LST型露天膠帶機脫排水裝置
SZJ型碎渣機
DDHJ-1F型電液動矩形單...
DXV-F(Y)型星形卸灰閥...
電動錐形雙層卸灰閥
電液動錐形層卸灰閥
電液動插板式雙層卸灰閥門
LB(Ⅰ、Ⅱ)-型單、雙層棒...
電動鎖風翻板閥
重錘式鎖風翻板閥
電動百葉閥(圓式、窗式)
電液動漿液閥
DDHJ-1F型電液動矩形單...
電液動蝶閥
電液動球閥
鑄鐵棒
輸送機觀察罩
PFCK破碎機系列組合件
輸送機觀察罩
加寬防雨罩
防雨罩
江蘇精智能液壓機械有限公司
全國咨詢熱線:
傳真:0514-84719609
郵箱:
地址:揚州市高郵湯莊工業區
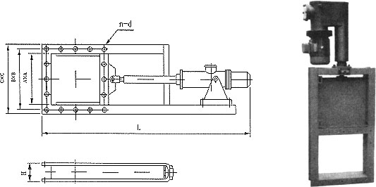
DSZ型電液動平板閘門

產品詳情

用途
該閘閥廣泛適用于建材、冶金、礦山等行業粉塵物料流量控制的管道上,是控制粉塵物料流量的理想設備。
特點
該閘閥結構簡單,重量輕,操作靈活,裝拆方便,采用優質碳素鋼制造,其強度高,性能好,使用壽命長;絲桿及螺母采用了軟防護罩結構,不受外界粉塵影響。
工作原理
該閘門主要由框架、絲桿螺母、手輪、閘板組成,手輪(鏈輪)轉動,絲桿帶著絲桿螺母和閘板作水平方向的往復運動,達到閥門的啟閉目的。
型號編制說明

1、SLV(D、S)型手動式平板閘門
用途

特點

2、DYLV型電液動推桿平板閘閥
用途
該閘閥是我廠改進產品,工藝先進,質量可靠。它廣泛地用于冶金、礦山、建材等行業,是控制粉塵物料流量的理想設備。
特點
1、本閥門操作方便,結構簡單。
2、性能好,使用壽命長。
工作原理
該閘閥主要由框架、閘板、電液裝置等零件組成。工作時,活塞桿受液壓力作用帶動閘板作水平方向的往復運動,達到閘門的啟閉目的。
型號編制說明

主要性能參數
適用介質 粉塵物料
適用溫度(℃) ≤150
主要外形及連接尺寸

3、DPZ-□型電液動平板閘門
